泗洪风情网

 找回密码
 立即注册

QQ登录

只需一步,快速开始

营业执照APP扫一扫

快捷登录

扫码登录更安全

查看: 20423|回复: 18

[装修日记] 雍锦府开工大吉!装修持续更新中……

  [复制链接]
发表于 2022-7-26 10:55 手机频道 | 显示全部楼层 |阅读模式 | 来自江苏

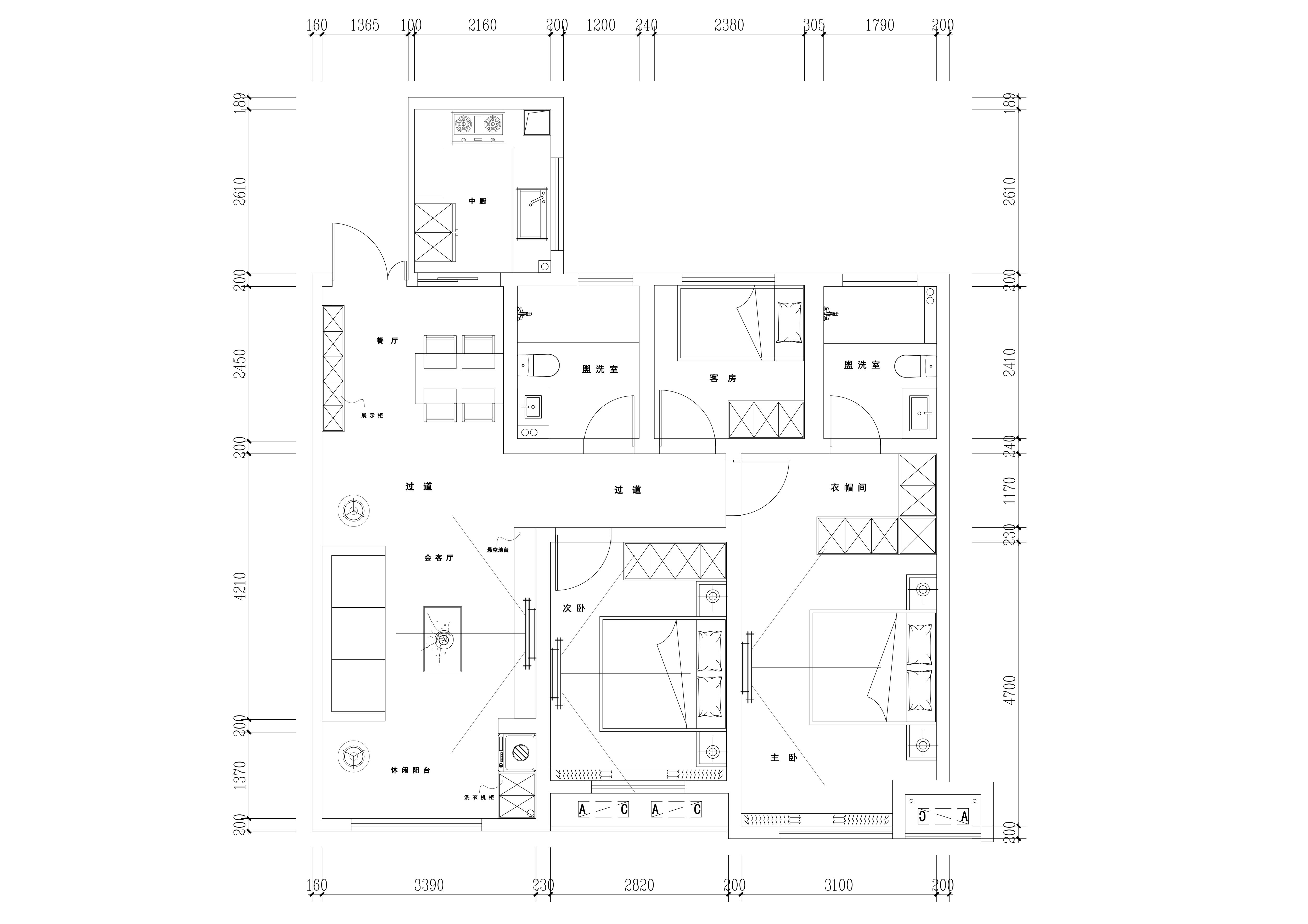
雍锦府三室两卫,今日开工!大家期待吧!

大家害羞,马赛克将就看一下!

 

微信图片_20220726140552.jpg


微信图片_20220726140518.jpg


 

店内活动火热进行中

微信图片_20220726143011.jpg

微信图片_20220726143015.jpg


 有需要直接扫描二维码咨询 

微信图片_20220726143019.jpg

 

来自: iPhone客户端
有问题,请加客服微信,微信号:A86289202!发布广告点击:求职招聘 - 租房售房 - 商铺租售 - 二手交易 - 便民服务 - 二手物品 - 二手汽车 - 拼车互助 - 综合广告
回复

使用道具 举报

 楼主| 发表于 2022-7-28 09:57 手机频道 | 显示全部楼层 | 来自江苏
26号开工,27号根据业主的要求对墙体进行改造,墙已砌好,今天水电工进场划线准备开槽,明天材料就可以进场,这节奏动起来!
20220728094446front1_0_557041_FnSp_X-vxfoUJYMfIzU8aCLtnaok.jpg
20220728094446front1_0_557041_FmJ0NLFUWM_WAvUD6uAfBw9Ml99N.jpg
20220728094446front1_0_557041_Frrdk_oenm9EL0zXs2X3gJP8QQJ_.jpg
20220728094446front1_0_557041_Fu-vjHg60duGjkXxWTTE1avGA9zE.jpg
来自: iPhone客户端
回复 收起回复
B Color Smilies
还可输入 个字符
有问题,请加客服微信,微信号:A86289202!发布广告点击:求职招聘 - 租房售房 - 商铺租售 - 二手交易 - 便民服务 - 二手物品 - 二手汽车 - 拼车互助 - 综合广告
回复

使用道具 举报

 楼主| 发表于 2022-8-31 14:58 手机频道 | 显示全部楼层 | 来自江苏
这是早之前拍的照片和大家一起分享一下
20220831145638front1_0_557041_FlKGLK3etjRm7kApzv859OMRZYo0.jpg
20220831145638front1_0_557041_Fun8Ph3gYt7PEcSn43MfKwlDXiIA.jpg
20220831145638front1_0_557041_FkVuISszXwmyknprnAcysE9VWeCT.jpg
来自: iPhone客户端
回复 收起回复
B Color Smilies
还可输入 个字符
有问题,请加客服微信,微信号:A86289202!发布广告点击:求职招聘 - 租房售房 - 商铺租售 - 二手交易 - 便民服务 - 二手物品 - 二手汽车 - 拼车互助 - 综合广告
回复

使用道具 举报

 楼主| 发表于 2022-8-31 15:00 手机频道 | 显示全部楼层 | 来自江苏
48小时防水实验


来自: iPhone客户端
回复 收起回复
B Color Smilies
还可输入 个字符
有问题,请加客服微信,微信号:A86289202!发布广告点击:求职招聘 - 租房售房 - 商铺租售 - 二手交易 - 便民服务 - 二手物品 - 二手汽车 - 拼车互助 - 综合广告
回复

使用道具 举报

 楼主| 发表于 2022-8-31 15:00 手机频道 | 显示全部楼层 | 来自江苏
瓷砖完工喽
20220831150040front1_0_557041_Fr_ifJzG1EAww9GldZtrT7Zf6iDq.jpg
20220831150040front1_0_557041_FkCrbCokEmWFMe-2_TmsBZWN62rv.jpg
20220831150040front1_0_557041_FmnvTT0B9aRF4A21aPrzM0-3YJ-S.jpg
来自: iPhone客户端
回复 收起回复
B Color Smilies
还可输入 个字符
有问题,请加客服微信,微信号:A86289202!发布广告点击:求职招聘 - 租房售房 - 商铺租售 - 二手交易 - 便民服务 - 二手物品 - 二手汽车 - 拼车互助 - 综合广告
回复

使用道具 举报

 楼主| 发表于 2022-8-31 15:02 手机频道 | 显示全部楼层 | 来自江苏
定制橱柜准备安装中
20220831150218front1_0_557041_Fk-YeZebKrhl7Ke8tMH0newCqa6E.jpg
20220831150218front1_0_557041_FilV6kM01mYD36khGTKNrarO1dJP.jpg
来自: iPhone客户端
回复 收起回复
B Color Smilies
还可输入 个字符
有问题,请加客服微信,微信号:A86289202!发布广告点击:求职招聘 - 租房售房 - 商铺租售 - 二手交易 - 便民服务 - 二手物品 - 二手汽车 - 拼车互助 - 综合广告
回复

使用道具 举报

发表于 2022-7-26 14:43 手机频道 | 显示全部楼层 | 来自江苏
装修小白,可以多看看,有不懂的也可以问下{:14:}来自: Android客户端
回复 收起回复
B Color Smilies
还可输入 个字符
有问题,请加客服微信,微信号:A86289202!发布广告点击:求职招聘 - 租房售房 - 商铺租售 - 二手交易 - 便民服务 - 二手物品 - 二手汽车 - 拼车互助 - 综合广告
回复

使用道具 举报

 楼主| 发表于 2022-8-1 10:23 手机频道 | 显示全部楼层 | 来自江苏
昨日水电管道开铺,好不好,图片来说话
20220801102316front1_0_557041_FjzMTqll-x2Dslko64JnBqx1V7Vb.jpg
20220801102316front1_0_557041_FhmpD6mIVFXm2SKPlc5ct1qN26GL.jpg
20220801102316front1_0_557041_Fglqvg7ejy-CKJc4olkLC9q_GdcP.jpg
20220801102316front1_0_557041_Fueq5BcqkIRrM2j7tBNJaFNj4CM3.jpg
20220801102316front1_0_557041_FnB6kPX7j-m7S1WNFnYz4hTrJvfC.jpg
20220801102316front1_0_557041_FuMs4K6d7lyQKdcGXdPmdVuZs7V7.jpg
来自: iPhone客户端
回复 收起回复
B Color Smilies
还可输入 个字符
有问题,请加客服微信,微信号:A86289202!发布广告点击:求职招聘 - 租房售房 - 商铺租售 - 二手交易 - 便民服务 - 二手物品 - 二手汽车 - 拼车互助 - 综合广告
回复

使用道具 举报

 楼主| 发表于 2022-8-8 14:44 手机频道 | 显示全部楼层 | 来自江苏
怎么办?业主说我们速度太快了{:14:}
赶工期的朋友们,来找我们呀{:14:}

20220808144422front1_0_557041_Fm80Y_EnDWeDcktYUJL3VwcvzLVW.jpg
20220808144422front1_0_557041_Fo1ystP1j_tTaDQzCeKxNKz-MoXs.jpg
20220808144422front1_0_557041_FuvXC21J3S1M9Sr4zZ95kstHB0Y_.jpg
20220808144422front1_0_557041_Fu4wKlYQStNfuqGkonYK4rmoBAYu.jpg
来自: iPhone客户端
回复 收起回复
B Color Smilies
还可输入 个字符
有问题,请加客服微信,微信号:A86289202!发布广告点击:求职招聘 - 租房售房 - 商铺租售 - 二手交易 - 便民服务 - 二手物品 - 二手汽车 - 拼车互助 - 综合广告
回复

使用道具 举报

发表于 2022-8-9 16:32 | 显示全部楼层 | 来自江苏
雍锦府在哪呀
收起回复
梦之家装修项目 : 中国泗洪,东南片区
2022-8-13 19:14 来自江苏 回复
B Color Smilies
还可输入 个字符
有问题,请加客服微信,微信号:A86289202!发布广告点击:求职招聘 - 租房售房 - 商铺租售 - 二手交易 - 便民服务 - 二手物品 - 二手汽车 - 拼车互助 - 综合广告
回复

使用道具 举报

发表于 2022-8-12 15:37 | 显示全部楼层 | 来自江苏
提示: 作者被禁止或删除 内容自动屏蔽
收起回复
梦之家装修项目 : 请留下联系方式{:1_676:}
2022-8-13 19:14 来自江苏 回复
汴水船夫 回复 梦之家装修项目 : 你怎么加我呢,wx250966599
2022-8-13 21:25 来自江苏 回复
B Color Smilies
还可输入 个字符
有问题,请加客服微信,微信号:A86289202!发布广告点击:求职招聘 - 租房售房 - 商铺租售 - 二手交易 - 便民服务 - 二手物品 - 二手汽车 - 拼车互助 - 综合广告
回复

使用道具 举报

发表于 2022-8-21 18:58 | 显示全部楼层 | 来自江苏
81800能装好吗?
收起回复
梦之家装修项目 : 柜子要是比较多,就不行了
2022-8-23 15:27 来自江苏 回复
B Color Smilies
还可输入 个字符
有问题,请加客服微信,微信号:A86289202!发布广告点击:求职招聘 - 租房售房 - 商铺租售 - 二手交易 - 便民服务 - 二手物品 - 二手汽车 - 拼车互助 - 综合广告
回复

使用道具 举报

发表于 2022-8-24 16:16 | 显示全部楼层 | 来自江苏
这个115平方的吗?  能去参观吗
收起回复
梦之家装修项目 : 嗯 可以的
2022-8-27 20:25 来自江苏 回复
B Color Smilies
还可输入 个字符
有问题,请加客服微信,微信号:A86289202!发布广告点击:求职招聘 - 租房售房 - 商铺租售 - 二手交易 - 便民服务 - 二手物品 - 二手汽车 - 拼车互助 - 综合广告
回复

使用道具 举报

发表于 2022-10-30 16:14 手机频道 | 显示全部楼层 | 来自江苏
这家多花多少钱哟来自: Android客户端
回复 收起回复
B Color Smilies
还可输入 个字符
有问题,请加客服微信,微信号:A86289202!发布广告点击:求职招聘 - 租房售房 - 商铺租售 - 二手交易 - 便民服务 - 二手物品 - 二手汽车 - 拼车互助 - 综合广告
回复

使用道具 举报

您需要登录后才可以回帖 登录 | 立即注册

本版积分规则

手机扫码渠道:
1.苏服办APP(使用说明)
2.江苏市场监管APP(使用说明)
3.微信/支付宝小程序 电子营业执照(使用说明)

QQ|关于我们|招聘精英|隐私保护|联系我们|网站帮助|法律声明|小黑屋|手机版|Archiver|泗洪风情网
备案号:苏ICP备12080034号-5  苏公网安备 32132402000003号 经营性ICP:苏B2-20120418号 

GMT+8, 2026-4-19 16:08

Powered by Discuz! X3.4

© 2001-2023 Discuz! Team.

快速回复 返回顶部 返回列表